電話:17685892957,17605322886
400電話:400-869-6766
QQ:3415432585
地址:青島市城陽區王沙路777號1號樓1層1-233網點
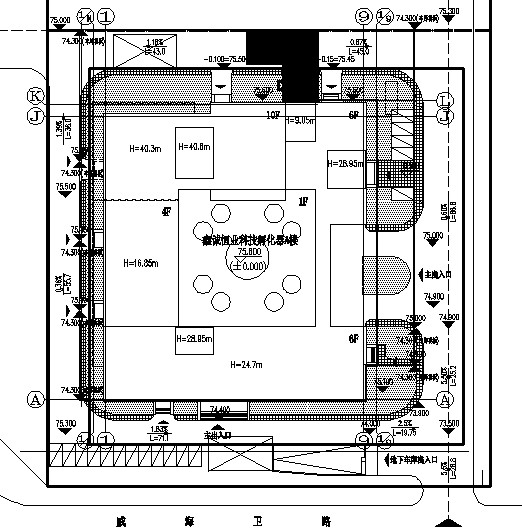
項目名稱: 鑫誠恒業科技孵化器A樓項目。
項目地點:位于即墨市藍色新區靖海衛路以北,龍山路以東;企業總部03地塊。總用地面積11366.66平方米。
建筑用途:辦公樓。
建筑層數和高度:本工程地下一層,地上主體10層;裙房4~6層;一層層高4.5米,其他層層高3.9米,建筑總高度40.3米。
建筑概況:地下一層為車庫和設備用房;地上部分為開敞式辦公。
建筑面積:本工程總建筑面積31659.66平方米,其中:地上24621.31平方米,地下7038.35平方米。
該辦公樓總平面如下圖所示:
(1)、《空氣調節設計手冊》(第二版)
(2)、《采暖通風與空氣調節設計規范》 (GB50019-2012)
(3)、《山東省居住建筑節能設計標準》 (DBJ14-037-2006)
(4)、《地源熱泵系統工程技術規范》 (GB50366-2005)(2009版)
(5)、建設單位對建筑的功能要求
室外設計參數

室內設計參數:
| 夏季 | 冬季 | |
| 溫度(℃) | 24±2 | 20±2 |
| 相對濕度(%) | 40~60 | 30~50 |
| 空氣流速(m/s) | 0.15~0.3 | 0.15~0.3 |
根據項目特點,該項目系統形式如下: 辦公樓的辦公室采用風機盤管+新風系統。地源熱泵空調機房設置于地下車庫負一層。
(1)空調負荷:
根據甲方提供的設計圖紙資料及負荷計算書,經統計,本工程的冷熱負荷值如下表所示:
|
建筑名稱 |
建筑面積 (m2) |
冷負荷 |
熱負荷 |
|
|
辦公樓 |
24621.31 |
2412 |
1725 |
從系統合理、可靠、節能、減少系統初投資等綜合因素出發,本系統擬采用地源熱泵空調系統形式,冷熱源方案如下:
按照地埋管負擔本項目空調熱負荷進行設計,選擇2臺螺桿式熱泵機組提供該項目冷熱負荷.本次方案設計預留鍋爐接口,鍋爐部分的設計不在此次范圍內,僅在系統中設計預留口,并在建筑冷熱源機房附近區域預留出設備安裝空間。
(1)供熱期:11月15日-4月5日;140天。
(2)制冷期:6月20日-10月1日;100天。
|
方案名稱 |
方案一:冷卻塔冷水機組+集中供熱 |
方案二:復合式地源熱泵中央空調 |
|
|
冷熱源形式 |
冷水機組+市政供熱 |
土壤源+冷水機組+鍋爐 |
|
|
有無室外機 |
冷卻塔 |
冷卻塔 |
|
|
室外天氣影響 |
冷卻塔存在熱島效應;夏季高溫時,系統效率下降 |
地源熱泵系統運行不受室外天氣影響 |
|
|
控制系統 |
冷水機組集中控制; 供熱系統無法靠節能運行來降低費用; |
集中控制,可做到無人值守 |
|
|
噪音問題 |
存在噪聲隱患,室外冷卻塔有噪音 |
機組集中于機房內,室內噪聲低 |
|
|
安裝空間 |
需室外放置冷卻塔;室內需安裝風機盤管及暖氣兩套系統,占用空間大 |
室內水系統,占用空間不大 |
|
|
使用壽命 |
冷水機組位于機房內,一般為15年, |
地埋管系統使用壽命50年,機組使用壽命一般為15~20年 |
|
|
初投資估算(元/m2) |
230~280 |
250~330 |
|
|
空調運行費用估算(元/m2) |
50~55 |
20~30 |
|
|
維護管理方面 |
維護管理復雜;系統維修時影響整個建筑物空調使用 |
維護管理復雜,單臺主機維修時,系統制冷量減少,但不影響整體使用 |
|
|
節能政策 |
無 |
可申請政府節能補貼 |
|
|
靜態投資回收期 |
對比方案 |
3年 |
青島沃富公司作為地源熱泵工程的系統集成商,配備暖通工程師及項目經理、項目監理人員,擁有近60人的管理團隊。設計人員均多年從事地源熱泵工程的設計,施工管理人員具有國家注冊建造師的執業資格并多年從事地源熱泵工程的施工。
在青島本地做過有代表性的地源熱泵工程有,奧運會帆船媒體中心、青島日本人學校、天泰藍泉別墅群、中國海洋大學國家實驗室、青島市氣象局、德國拜耳青島工廠、青島城投銀沙灘度假區、2014年世園會等70余個工程案例成功實施。對本地區的地質情況了如指掌,掌握了大量的實際運行數據 ,對系統的設計、調試、運行、售后等積累了豐富的經驗。
沃富與國際地源熱泵主機、水泵、風機盤管等品牌生產商均有良好的合作關系。對所集成的產品性能了如指掌,對系統的匹配有著豐富的經驗。
沃富位于嶗山商務區,售后服務機構由經過地源熱泵組嚴格培訓的技術人員組成,已建立售后服務網點。售后服務反應及時、保障有力。
沃富公司作為青島地區從事地源熱泵行業的公司,承做的項目有政府項目、奧運項目、房地產項目等,項目運行效果良好,節能效果顯著,千禧國際村項目順利通過了國家可再生能源示范項目為期兩年的節能監測。在業內樹立了良好的口碑,沃富地源熱泵已成為島城自己人的品牌。
青島沃富公司有成熟的運營團隊,了解各種節能政策,熟悉各種申請程序及文本,公司已配合建設單位申請成功數十萬平米的可再生能源專項資金。
辦公地址:青島市嶗山區海爾路180號大榮中心A座